Prodrive Garage Door Opener Manual 3220c Dandk Organizer

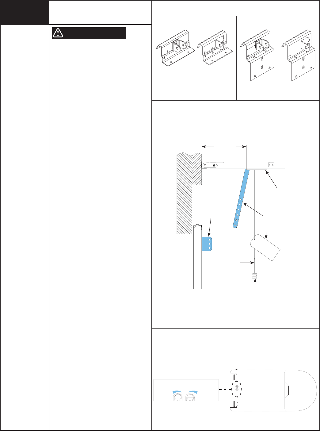
Wayne Dalton Prodrive 3220c. Best Prodrive 3220c Remote Chamberlain 1245r We have 1 Wayne-Dalton Prodrive 3220C Door Remote manual available for free PDF download: Installation Instructions And Owner's Manual 1 12" Needle Nose Pliers FOR MOUNT HOPE AND PENSACOLA TRACK: Adjustable Wrench Measure the curved ends of the horizontal track to determine.

2 Pack Garage Door Opener Control Replace for Wayne Dalton Prodrive
2 Pack Garage Door Opener Control Replace for Wayne Dalton Prodrive from www.walmart.com

WAYNE-DALTON model PRODRIVE, 3220C, 3221C, 3222C, 3224C, 3320B, 3322B, 3324B residential opener is a 1/2hp belt drive Whether your business is in need of a high speed door that requires a long life and enhanced safety features, a Sectional Door that requires unparalleled strength, or a Rolling Door that requires minimal maintenance with advanced performance, our dealers can help customize a solution.

2 Pack Garage Door Opener Control Replace for Wayne Dalton Prodrive

Topics manualsonline, manuals, waynedalton_corp, Collection manuals_contributions; manuals; additional_collections Language English Item Size 28.3M To ensure your new Prodrive ® opener works as intended, your garage door must be properly installed and balanced. Topics manualsonline, manuals, waynedalton_corp, Collection manuals_contributions; manuals; additional_collections Language English Item Size 28.3M

Prodrive Garage Door Opener 3220c Dandk Organizer. Addeddate 2020-08-10 04:55:05 Identifier manualsbase-id-161742 Identifier-ark ark:/13960/t2v49s34p. Whether your business is in need of a high speed door that requires a long life and enhanced safety features, a Sectional Door that requires unparalleled strength, or a Rolling Door that requires minimal maintenance with advanced performance, our dealers can help customize a solution.

WayneDalton PRODRIVE 3220C User's Manual Page 24 Free PDF Download. View and Download Wayne-Dalton Prodrive 3220C installation instructions and owner's manual online PRODRIVE 3220C - read user manual online or download in PDF format